
Фильтр ФГГ-200
цена от
559 900 руб.
- Исполнение – горизонтальное
- Номинальный диаметр DN – 300 мм
- Номинальное давление PN – до 10,0 МПа
- Тонкость фильтрации – 4, 8, 12, 16 или 25 мм
- Максимальная производительность – 500 м³/ч
- Материал корпуса – 09Г2С / 12Х18Н10Т / другая сталь
- Блочное исполнение – опционально
- Теплоизоляция – опционально
- Комплектация КИП, ЗРА – опционально
- Резервные фильтрующие элементы – опционально
Фильтр ФГГ-300 (DN 300, 500 м³/ч) — оптимальный выбор для нефтехимических производств и магистральных трубопроводов средней мощности. Модель обеспечивает двухступенчатую очистку: гравитационное осаждение крупных частиц и тонкую фильтрацию через сетчатые кассеты.
Примеры применения горизонтальных фильтров ФГГ-300
- НПЗ в Реутове: Предварительная очистка сырой нефти перед перегонкой.
- Химические предприятия: Защита реакторов от попадания механических примесей.
- Трубопроводы газа: Фильтрация конденсата для предотвращения коррозии.
Особенности фильтров для нефтепроводов ФГГ-300
- Увеличенная осадочная камера (внутренний диаметр — 700 мм) для работы с высокоабразивными средами.
- Блочная комплектация: Поставка с лебедкой и поддоном для упрощения обслуживания на удаленных объектах (опционально).
- Температурная устойчивость: Рабочий диапазон от -20°C до +80°C.
Технические параметры фильтра для нефти ФГГ-300
| Обозначение | Фильтр ФГГ-300 |
| Производительность, м³/ч | 500 |
| Условное давление, Pу, МПа | 1,6; 2,5; 4,0; 6,3; 8,0 или 10,0 |
| Температура нефти, ℃ | От -15 до +80 |
| Температура нефтепродуктов, ℃ | От -20 до +80 |
| Степень фильтрации, мм | 4, 8, 12, 16 или 25 |
| DN, мм | 300 |
| Dp, мм (внутренний диаметр корпуса) | 600 |
| L, мм (расстояние от фланца корпуса до кромки осевого патрубка) | 3300 |
| L1, мм (расстояние от оси бокового патрубка) | 1400 |
| H, мм (расстояние от оси ФГГ до опоры) | 1000 |
| L2, мм (расстояние между опорами) | 1600 |
| L3, мм (расстояние до опоры) | 1200 |
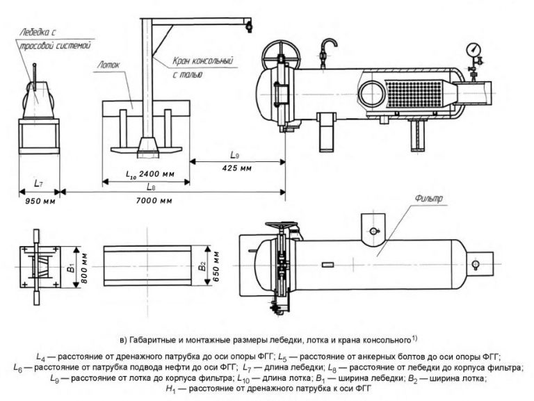
| Обозначение | Блочный фильтр ФГГ-300 |
| L7, мм (длина лебедки) | 950 |
| L8, мм (расстояние от лебедки до корпуса фильтра) | 7000 |
| L9, мм (расстояние от лотка до корпуса фильтра) | 425 |
| L10, мм (длина лотка) | 2400 |
| В2, мм (ширина лотка) | 650 |
| В1, мм (ширина лебедки) | 800 |
| L5, мм (расстояние от анкерных болтов до оси опоры ФГГ) | 0 |
| L6, мм (расстояние от патрубка подвода нефти до оси ФГГ) | 730 |
| L4, мм (расстояние от дренажного патрубка к оси опоры) | 750 |
| Н1, мм (расстояние от дренажного патрубка до оси ФГГ) | 470 |
| Радиус вылета быстроразъемного концевого затвора, мм | 1030 |
| Количество штурвалов быстроразъемного концевого затвора, шт | 1 |
Чертеж фильтра ФГГ-300
Чертеж блочного фильтра ФГГ-300
Преимущества ООО "УЗСК"
- Изготовление корпусов из нержавеющей стали марки 12Х18Н10Т для агрессивных сред.
- Шефмонтаж и пусконаладочные работы.
- Производство нестандартных фильтров по индивидуальным параметрам заказчика.
Расшифровка условного обозначения
Например, фильтр грязеуловитель горизонтальный ФГГ номинальным диаметром DN 300 на номинальное давление PN 1,6 МПа, блочного исполнения, с осевым отводом нефти или нефтепродуктов, с правым расположением патрубка подвода нефти или нефтепродуктов, в сейсмостойком исполнении С по MSK — 64 [10], без теплоизоляции, вид климатического исполнения УХЛ1 по ГОСТ 15150 будет обозначаться следующим образом: ФГГ-300-1,6-Б-0-П-С-УХЛ1.
Заполните форму заказа






